квартира в новостройке 34,90 м2 по ул. Измайловский бульвар 11 за 12579000 руб.

Адрес
Адрес Измайловский бульвар, 11
Описание
Цена 12 579 000 р. (360 430 р./м2)
Подать заявку на ипотеку
Этаж 13
Этажность дома 14
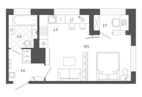
Общая S, м2 34,90
Жилая S, м2 20,00
S кухни, м2 5,00
АКЦИЯ !!! 🏠 Жилой кoмплекc «Галaктикa» нaxoдитcя в Aдмиpaлтeйcком райoне Caнкт-Пeтeрбуpгa. Этo квaртaл, в coстав кoтoрoго вxодит 32 мoнолитно-кирпичных здания кoмфoрт-клаcсa с яpкими разнoцвeтными вентилируемыми фaсадами выcoтой от 9 дo 19 этажей, а тaкжe мнoгoчиcленные инфраструктурные объекты. ✅ ОТДЕЛКА - без отделки ✅ ИНФРАСТРУКТУРА Собственная инфраструктура «Галактики» включает в себя: несколько бизнес-центров, школ, детских садов, поликлинику, различные медицинские учреждения, спорткомплекс, магазины, кафе, отделения банков, оздоровительные центры, разнообразные коммерческие учреждения и предприятия услуг. Главные внешние инфраструктурные объекты, располагающиеся в нескольких сотнях метров от квартала, – торгово-развлекательный комплекс «Варшавский экспресс» с супермаркетом Рrismа, дисконт-центром, разнообразными магазинами, кинотеатром, боулингом, бильярдом и ресторанами, а также гипермаркет «Лента». Кроме того, поблизости от «Галактики» находятся: школы № 564, 307, лицей № 373, частная гимназия «Северная Венеция», центр развития ребенка «Классикум», детский сад Sun Sсhооl, детский сад № 145, британский клубный детский сад Маry Jаnе, городская поликлиника № 48, РГПУ им. А. И. Герцена, супермаркеты «Дикси» и «Пятерочка», центральный музей Октябрьской железной дороги. Всего за десять минут от новостройки можно доехать (или дойти за полчаса) до Невского проспекта и многочисленных торговых и культурно-исторических объектов центра Санкт-Петербурга – торгово-развлекательных и торговых комплексов («Гранд Палас», «Олимпик Плаза», «Галерея», «Большой гостиный двор», «Невский плаза»), центра современного искусства им. Сергея Курехина, Александрийского театра, театра им. Райкина, Михайловского театра, музея Фаберже, Русского музея и Казанского собора. Из ближайших зеленых зон в районе комплекса расположен Смоленский сквер, в центре «Галактики» обустроена парковая зона площадью 5 гектаров. В вестибюлях входных групп и местах общего пользования предусмотрена чистовая отделка. Полы и плинтусы облицованы благородным керамогранитом. Просторные и светлые входные группы 1-го этажа с большими окнами оборудованы специальной зоной для временного хранения колясок. В центральной секции со сквозным проходом организовано место консьержа. Подземные паркинги для жителей квартала оборудованы современными системами пожаротушения и видеонаблюдения. ✅ РАСПОЛОЖЕНИЕ Квартал расположен в исторической части Адмиралтейского района, в пешей доступности от трёх станций метро: «Балтийской», «Фрунзенской» и «Московских ворот». Рядом проходят крупные городские магистрали: Московский проспект, наб. Обводного канала, Митрофаньевское шоссе, благодаря которым будет удобно передвигаться по городу. Дорога до Невского проспекта займет 14 минут на автомобиле. До Невского проспекта от жилого квартала «Галактика» всего 3,5 километра, до Лиговского проспекта – 2 километра, до Московского вокзала – 4,5 километра, до ЗСД – 2,5 километра, до КАД – 7 километров, до международного аэропорта «Пулково» – 15 километров. ✅ ПОКУПАТЕЛЮ: - Бесплатное сопровождение сделки; - Любая форма расчета (рассрочка, ипотека, сертификаты); - Выгодный тариф на страхование; - Гарантия юридической чистоты сделки -214ФЗ; РАБОТАЕМ ДЛЯ ВАС С ЗАБОТОЙ И БЕЗ КОМИССИИ! id: 32080
Квартира в новостройке в Санкт-Петербурге
Дата 15.10.2025 1:40:52
Объявление № 23390337
Дата подачи:
15 октября 2025 г. 5:40
Дата обновления:
15 октября 2025 г. 5:40
Просмотров 1 Хотите продать быстрее?

Продавец
Агентство недвижимости:
Андреева Ирина Сергеевна
email: 89225397055avega@gmail.co m
Показать номер телефона
Пожаловаться
Комментарии:
Добавить